Peter Süßenberger

Diplom-Ingenieur, Architekt

Gartenstraße 9
13088 Berlin-Weißensee

Neubau eines Einfamilienhauses mit Einliegerwohnung

Projekt: SIM, Ittling 48, 91245 Simmelsdorf

Wohnfläche: 395 qm / Bausumme: 410.000 EUR

LP 1-4, Süßenberger, Architekt

Projekte



Das freistehende Einfamilienhaus mit Einliegerwohnung wurde in Simmelsdorf bei Nürnberg im Außenbereich d.h. außerhalb eines gültigen Bebauungsplan errichtet. Die Gemeinde Simmelsdorf benutzt hier das Instrument der Ortsabrundungssatzung, um Baurecht zu schaffen.


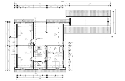
Das zweigeschossige Gebäude wurde in Massivbauweise errichtet und ist voll unterkellert.

Die vorgefundenen Hanglage wurde genutzt, um auf zwei verschiedenen Höhenniveaus jeweils gleichberechtigte Hauszugänge zu realisieren. Hierdurch konnte auf ein gemeinsames Treppenhaus verzichtet werden.


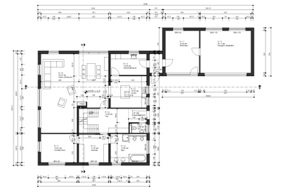
Im Erdgeschoss ist prinzipiell in zwei Bereiche unterteilt, einer öffentlichen Zone mit Wohnküche und Wohnzimmer, das durch einen grosszügigen Deckenausschnitt auch eine Beziehung mit dem Dachgeschoss herstellt. Die zweite sehr private Zone setzt sich aus dem Schlafzimmer der Hauseigentümer, einem Ankleidezimmer und einem grosszügigen Bedezimmer zusammen. Der Zugang zu diesem Bereich erfolgt über das Ankleidezimmer, das gleichzeitig als Verteiler zu den beiden anderen Räumen dient.


Im 1. OG des Hauses befinden sich die beiden Kinderzimmer, eine offene Ebene, die als Arbeitsplatz, aber auch als Spielfläche genutzt werden kann. Hier befindet sich auch ein zweites Badezimmer und ein Gästezimmer.


Der daneben errichtete Baukörper beherbergt eine kleine Werkstatt, die der Bauherr selbst nutzt und eine Doppelgarage. Dieser Bereich ist durch einen geschlossenen Flur mit dem Wohnhaus verbunden, der einen witterungsunabhängigen Zugang zum Wohnhaus herstellt. Da das Wohnhaus in einem dünn besiedelten Landschaftsraum liegt konnte damit gleichzeitig dem erhöhten Sicherheitsbedürfnis Rechnung getragen werden.

Peter Süßenberger, Berlin - Impressum

nach oben