Peter Süßenberger

Diplom-Ingenieur, Architekt

Gartenstraße 9
13088 Berlin-Weißensee

Neubau eines Einfamilienhauses

Projekt: GWH, Am Zuckerlottchen 41, 55218 Ingelheim am Rhein

Wohnfläche: 150 qm / Bausumme: 205.000 EUR

LP 1-4, Süßenberger, Architekt

Projekte



Das Einfamilienhaus in Ingelheim am Rhein (Stadtteil: Groß-Winternheim) wurde als Doppelhaushälfte entsprechend den Vorgaben des Bebauungsplans der Stadt Ingelheim errichtet. Da die Grundstücke nicht zusammen erworben wurden entstand zunächst nur eine Hälfte des Doppelhauses.


Das zweigeschossige Gebäude wurde in Massivbauweise errichtet und ist teilunterkellert.

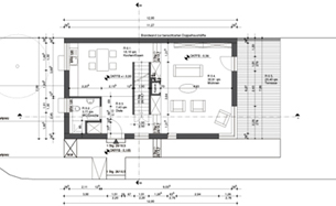
Die vorgefundenen Hanglage wurde für eine Höhenstaffelung der Räume im Erdgeschoss genutzt, wodurch sich das Gebäude der Topographie anpasst. So entstand am unteren Ende des Gebäudes ein hoher repräsentativer Raum, der als Wohn- und Empfangsraum genutzt wird.


Der Eingestellte Treppenkörper zoniert das Erdgeschoss vorteilhaft in zwei Hälften, die sehr unterschiedliche Funktionen aufnehmen. Auf der einen Seite befinden sich die funktionalen Elemente, wie der Eingangsbereich, Toilette, und Küche. Auf der anderen Seite liegt das höhere repräsentative Wohnzimmer von dem aus ebenerdig die Terrasse betreten werden kann. Von dort gelangt man über eine kurze Treppe in den Garten.


Im 1. Obergeschoss befinden sich zwei Schlafzimmer, ein Bad und ein Abstellraum der gleichzeitig als Waschküche genutzt wird. Vom größeren Schlafzimmer aus gibt es einen direkten Zugang zum Badezimmer.


Im DG befindet sich ein weiteres Kinderzimmer und eine offene Arbeitsebene.


Als Verschattungselemente werden Schiebeelemente mit horizontal verlaufenden Holzlamelle zur Ausführung kommen. Diese Elemente werden der Fassade neben den Fenstern eine zusätzliche Gliederung geben. Durch die verschieden Einstellmöglichkeiten der Schiebeelemente wird das Gebäude in Folge der Benutzung ständig seine äußere Erscheinung verändern. Die natürliche Belichtung kann zukünftig mit Hilfe der verwendeten Schiebeelemente über den Tag hinweg stufenlos nachjustiert werden, wodurch optimale Belichtungssituationen erreicht werden können. Bei geschlossenen Schiebeelementen bleibt der Blick nach draußen wegen der geplanten leicht geneigten horizontal verlaufenden Lamellen erhalten, bei gleichzeitig günstiger Verschattung.

Peter Süßenberger, Berlin - Impressum

nach oben