| 
											
										 | 
										 | 
										
											 
												 Bestandsgebäude 
													 
												
												Das 1906 errichtete Gebäude in der Rudolf-Breitscheid-Strasse 38-40 in Falkensee wurde zunächst als Hotel und Restaurant genutzt. Mit einem Besitzerwechsel 1910 wurden einige bauliche Veränderungen vorgenommen, um es anschliessend als Offizierscasino zu nutzen. Zuletzt diente das Gebäude einer Wohnnutzung. 
													 
												
												Denkmalpflege 
													 
												
												Das Gebäude wurde 2001 als Einzeldenkmal in die Denkmalliste Brandenburgs aufgenommen. Seit dem gilt es als Dokument städtebaulichen, architektonischen und handwerklichen Schaffens. 
												
												Auflage der Denkmalpflege war der Erhalt der strassenseitigen Fassade und die Rekonstruktion der Giebelwand nach historischem Vorbild. 
												
												 
												
												Sanierung und Modernisierung 
													 
												
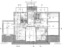
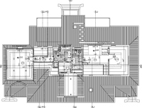
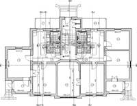
												Nach einem sieben jährigen Leerstand, waren umfangreiche Sanierungsmaßnahmen erforderlich. Im Zuge dieser Maßnahmen wurde das Dachgeschoss als Wohnraum ausgebaut und mit den darunterliegenden Wohnungen zu Maisonettewohnungen verbunden.
												 
												
												Um sowohl den Ansprüchen einer gehobenen Wohnnutzung, als auch den Belangen des Denkmalschutzes gerecht zu werden, wurden die Eingriffe in die vorhandene Substanz auf wenige Punkte konzentriert. Im Erdgeschoss und im 1. Obergeschoss wurden nur die Eingangsbereiche neu gestaltet. Die Zonierung dieser Bereiche erfolgte in allen Wohnungen durch ein eingestelltes Objekt, welches das Badezimmer, die Küchenzeile und die gesamte neue Infrastruktur des Hauses aufnimmt. 
												
												
											
										 | 
										 | 
										
											
										 |