| 
											
										 | 
										 | 
										
											 
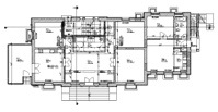
												 Bei dem Gebäude handelte es sich um ein freistehendes zweigeschossiges Einfamilienhaus mit einer ursprünglich repräsentativen Wohnnutzung. Später wurde es als Kindereinrichtung umgenutzt. Ab ca. 1990 stand das Gebäude leer.
												 
												
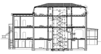
												Der Hauptflügel des Gebäudes wurde vor ca. 150 Jahren errichtet. Teilweise waren Fachwerk-konstruktionen mit Ausmauerungen im Erd- und im Obergeschoss vorzufinden. Diese konnten leider nicht erhalten werden, da die während des Leerstandes eingedrungene Nässe dazu geführt hat, daß sich über die Jahre hinweg der Echte Hausschwamm und diverse Nassfäulepilze  ansiedeln konnten.
												 
												
												Sanierung:
												 
												
												Instandhaltungs- und Instandsetzungsmaßnahmen werden seit 09 / 2003 durchgeführt. Im Zuge der Sanierungsmaßnahmen wurde das Gebäude zuerst trockengelegt. Hierzu sind die Horizontal- und Vertikalabdichtungen vollständig erneuert worden. Der Echte Hausschwamm konnte durch den großflächigen Austausch von Mauerwerk und durch die Neuerrichtung des Dachstuhl beseitigt werden. Alle Fachwerkwände mussten gegen Wände aus Kalksandstein ersetzt werden. Die Holzbalkendecken wurden zu ca. 50% erneuert. Über dem Keller kamen massive Ziegeleinhängedecken zur Ausführung.
												 
												
												Um das Gebäude als Mehrfamilienhaus mit fünf Wohneinheiten umnutzen zu können, musste die Erschliessung neu organisiert werden. Die vorhandenen einläufigen Holztreppen wurden gegen dreiläufige Zweiholmtreppen aus Stahlbeton ausgetauscht. Im Zuge dieser Maßnahmen wurde das Treppenhaus aus Kalksandsteinmauerwerk neu aufgemauert.
												 
												
												Die Modernisierung des Wohnhauses ist noch nicht abgeschlossen. 
											
										 | 
										 | 
										
											
										 |