Peter Süßenberger

Diplom-Ingenieur, Architekt

Gartenstraße 9
13088 Berlin-Weißensee

Logistikhalle mit Büro- und Sozialräumen

Projekt: GS, Heisenbergstrasse 2, 71083 Gültstein

Nutzfläche: 5.180 qm / Bausumme: 4,8 Mio EUR

LP 1-5, Mitarbeit als Freiberufler für Büro heberle.mayer

Projekte



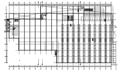
Der Neubau der Logistikhalle mit Hochregallager, Büro und Sozialräumen ist 2005 in Gültstein errichtet worden.

Das Tragwerk der 3-hüftigen Halle besteht aus statisch optimierten Stahlwalzprofilen, die im Bereich der Dachebene aus unterschiedlich hohen Stahlprofilen zusammengesetzt wurden. Die statische Höhe dieser zusammengesetzten Träger verringert sich in Richtung Feldmitte. Als statisches System wurde ein optimierter Dreigelenkrahmen mit biegesteifen Ecken gewählt. Die Stahlstützen wurden in Köcherfundamenten gegründet.


Die Außenwände im Sockelbereich bestehen aus Stahlbeton-Sandwichelementen. Darüber befinden sich Leichtbauwände aus wäremgedämmten Stahlkassetten, die aussen mit horizontal verlaufenden Wellblechen verkleidet wurden. Die horizontalen Glasbänder erhielten im Hallenbereich eine Industriebauverglasung. In regelmäßigen Abständen sind Fenster mit Öffnungflügel zur natürlichen Lüftung eingebaut worden.

Die Büro- und Sozialräume befinden sich in dem Auskragenden Teil der Halle. Dieser Bereich wurde aus Stahlbeton-Fertigteilen errichtet.

Die ganze Anlage wurde mit einem Sprinklersystem ausgestattet, das auch die einzelnen Ebenen der Hochregale mit Löschwasser fluten kann.

Peter Süßenberger, Berlin - Impressum

nach oben