Peter Süßenberger

Diplom-Ingenieur, Architekt

Gartenstraße 9
13088 Berlin-Weißensee

Logistikhalle (2-geschossig) mit Parkdeck

Projekt: BOE, Hewlett-Packard-Strasse 2, 71034 Böblingen

Nutzfläche: 15.650 qm / Bausumme: 12 Mio EUR

LP 1-5, Mitarbeit als Freiberufler für Büro heberle.mayer

Projekte



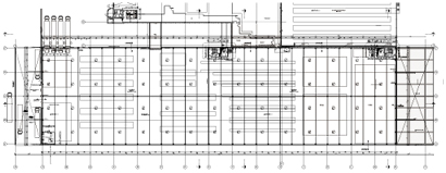
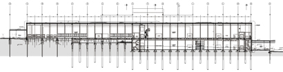
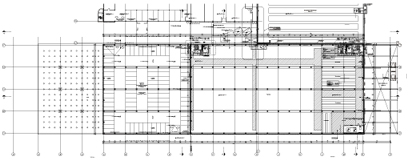
Die 2-geschossige Logistikhalle mit Parkdeck dient als Erweiterung eines bestehenden Logistikzentrums in Böblingen.


Aufgrund der vorhandenen Topographie kann die An- und Ablieferung der 2-geschossigen Logistikhalle auf zwei Ebenen direkt über LKW's von Außen erfolgen. Der Höhenunterschied zwischen beiden Etagen wird über eine seitlich der Halle verlaufenden Strassenrampe überwunden. Mit dieser neu gebauten Strasse wird zusätzlich das Parkdeck und das höher liegende Firmengelände erschlossen.


Das Parkdeck selbst liegt hinter dem im Erdgeschioss liegenden Hallenraum. Die untere Etage verkürzt sich hierbei um die Länge des dahinter liegenden Parkdecks und dem nicht ausgebauten Bereich dahinter.


Die ganze Anlage wurde im einem Sprinklersystem ausgestattet, das auch die einzelnen Ebenen der geplanten Hochregale mit Löschwasser fluten kann.


Alle statisch relevanten Bauteile der neu errichteten zweigeschossigen Logistikhalle mit Parkdeck sind aus Stahlbetonfertigteilen hergestellt worden. Gegründet wurde das Gebäude auf Schotterpfählen. Um den, in dieser Region erforderlichen erhöhten Anforderungen bezüglich der Erdbebensicherheit gerecht zu werden, mussten diagonale Verstrebungen zusätzlich im Erdreich eingebaut werden.


Alle Außenbauteile wurden mit Stahl-Trapezblechen verkleidet. Die Wände in der unteren Etage sind aus Stahlbeton hergestellt worden und dienen der Aussteifung des Gebäudes. Die Wände im darüberliegenden Geschoss haben keine besonderen statischen Anforderungen und konnten aus wärmegedämmten Metallkassettten hergestellt werden.


Die Bauzeit für das Gebäude betrug ohne Außenanlagen knapp 5 Monate.

Peter Süßenberger, Berlin - Impressum

nach oben