| 
											
										 | 
										 | 
										
											
										 | 
										 | 
										
											 
												 Umbau der DEKRA-Niederlassung in Reutlingen, die seit 25 Jahren als Kfz-Prüfbetrieb besteht.  
													 
												
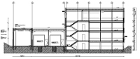
												Der Umbau beinhaltete den Abriss einer Prüfhalle, den Neubau einer LKW-Prüfhalle, die Aufstockung des Bürogebäudes um ein Geschoss, den Anbau eines neuen Verbindungsbaus zwischen Halle und Büro sowie die Herstellung eines neuen Kundeneingangs.  
												
												 
												
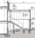
												Die Konstruktion der Büroaufstockung besteht aus Stahlwalzprofilen, die im Bürobereich frei von Außenwand zu Außenwand spannen. Die Aussteifung der Konstruktion erfolgt über den Treppenhauskern und Vertikalverbände in den Außenwänden sowie über Horizontalverbände in der Dachebene.
												 
												
												Im Zuge der Aufstockung wurden die darunter liegenden Büroräume vollständig modernisiert. 
													 
												
												Die Außenwände des Bürogebäudes und der Prüfhallen erhielten eine hochwertige Fassade aus Leichtmetallpaneelen mit Kunstoffeinlage.
												 
												
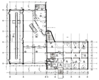
												In die Bestandsprüfhalle wurde ein Büro für Prüfingenieure eingebaut und mit einem Kundeneingang ergänzt.
											
										 |