Peter Süßenberger

Diplom-Ingenieur, Architekt

Gartenstraße 9
13088 Berlin-Weißensee

Neubau eines Doppelhauses

Projekt: ETS, Ernst-Thälmann-Strasse 42, 14532 Kleinmachnow

Häuser A1 - A2

LP 5, Mitarbeit als Freiberufler für Büro Carlos Zwick

Projekte



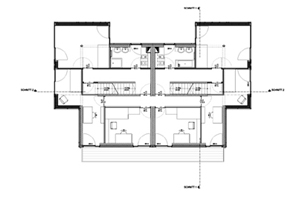
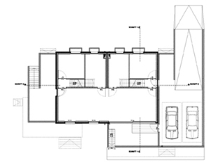
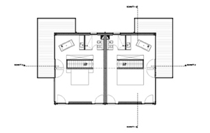
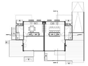
Das Doppelhaus in Kleinmachnow ist in Massivbauweise mit Vollwärmeschutz geplant. Als Wetterschale wurde ein Lärchenschirm aus horizontal verlaufenden Latten gewählt. Die im ersten Obergeschoss zu zwei Seiten auskragenden Räume erhalten Seitenwände aus vorgefertigten Holztafelelementen, die mit Cor-Ten-Stahl verkleidet werden.


Das Dach wird eine Schalung aus Lärchenholzbolen erhalten, die in kurzen Abständen zueinander eingebaut werden. Die Wasserführende Schicht wird unter der Lärchenschalung durch ein Foliendach realisiert.


Alle sichtbaren Stahlbetonwände werden als Fertigteile geliefert und in Sichtbetonqualität ausgeführt. Die Decken werden gespachtelt, geschliffen und erhalten eine Anstrich. Die beheizten Fußböden werden mit Holzbelag ausgeführt.


Im Kellergeschoss sind die beiden Doppelhaushälfen durch einen gemeinsamen Spiel- und Hobbyraum verbunden, im 1. Obergeschoss gibt es einen verbindenden Flur. Ansonsten sind die Häuser vollständig voneinander getrennt.


Die beiden Häuser verschmelzen durch die geschaffenen Verbindungen scheinbar zu einem Einfamilienhaus, die konsequente Trennung im Erd- und Dachgeschoss macht allerdings deutlich, daß es Wille der Bauherren war zwei getrennte Häuser zu erhalten. Ein Teil der Bewohnerschaft erhält durch diese Konzeption priviligierte Zugangsrechte zu beiden Häusern anderen bleibt der Zugang verwehrt.

Peter Süßenberger, Berlin - Impressum

nach oben