Peter Süßenberger

Diplom-Ingenieur, Architekt

Gartenstraße 9
13088 Berlin-Weißensee

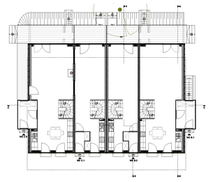
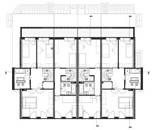
Neubau von vier Reihenhäusern

Projekt: ETS, Ernst-Thälmann-Strasse 42, 14532 Kleinmachnow

Häuser B1 - B2 und C1 - C2

LP 5, Mitarbeit als Freiberufler für Büro Carlos Zwick

Projekte



Die 4 Reihenhäuser in Kleinmachnow werden aus Stahlbeton-Fertigteilen und vorgefertigten Holztafelelementen errichtet. Alle massiven Außenbauteile erhalten einen Vollwärmeschutz. Als Wetterschale wurde im Erdgeschoss ein Lärchenschirm aus horizontal verlaufenden Latten gewählt. Die Seitenwände des Obergeschosses und die des Dachgeschosses, einschliesslich der wasserführenden Dachfläche erhalten eine Verkleidung aus Cor-Ten-Stahl.



Die mit Cor-Ten-Stahl verkleideten Außenbauteile haben umlaufend einem Überstand von ca. 10 cm zu den darunterliegenden Bauteilen, damit der Cor-Ten-Stahl seine rostige Patina ansetzen und kontrolliert weiterrosten kann, ohne die darunter liegenden Bauteile durch Rostpartikel, die im ablaufenden Regenwasser enthalten sind, zu verschmutzen.



Alle Stahlbetonwände werden in Sichtbetonqualität gefertigt und als Fertigteile zur Baustelle geliefert. Die Decken werden gespachtelt, geschliffen und erhalten einen Anstrich. Die beheizten Fußböden werden mit einem Holzbelag ausgeführt.


Peter Süßenberger, Berlin - Impressum

nach oben